Halle-Nietleben: Doppelhaushälfte mit Einbauküche, Nähe zum Heidesee

06126 Halle (Saale)-Nietleben, Einfamilienhaus zum Kauf

Einfamilienhaus

Dieses Objekt wurde bereits erfolgreich vermittelt.

Objekt­beschreibung

Die Doppelhaushälfte befindet sich in Halle (Saale), hier im bevorzugten Nietleben. Sie wurde im Jahr 2003 errichtet und ist ein kleines Raumwunder. Die 86 qm Wohnfläche sind gut durchdacht und erscheinen größer.
Im Erdgeschoss finden Sie den offenen Wohn- Essbereich mit der Küche und das Gäste-WC. Die hochwertige Küche ist mit Miele- und Neffgeräten sowie einer Granitarbeitsfläche ausgestattet. Für wohlige Wärme sorgt im Erdgeschoss die Fußbodenheizung. Die Rollläden im Erdgeschoss verfügen über eine elektrische Steuerung mit Zeitschaltuhr, im OG ist ein Rollladen solarbetrieben.
Das Obergeschoss beherbergt das Wannenbad und 3 Zimmer mit einem Durchgangszimmer.
Die Galerie im ausgebauten Dachgeschoss wird aktuell als Schlafzimmer genutzt.
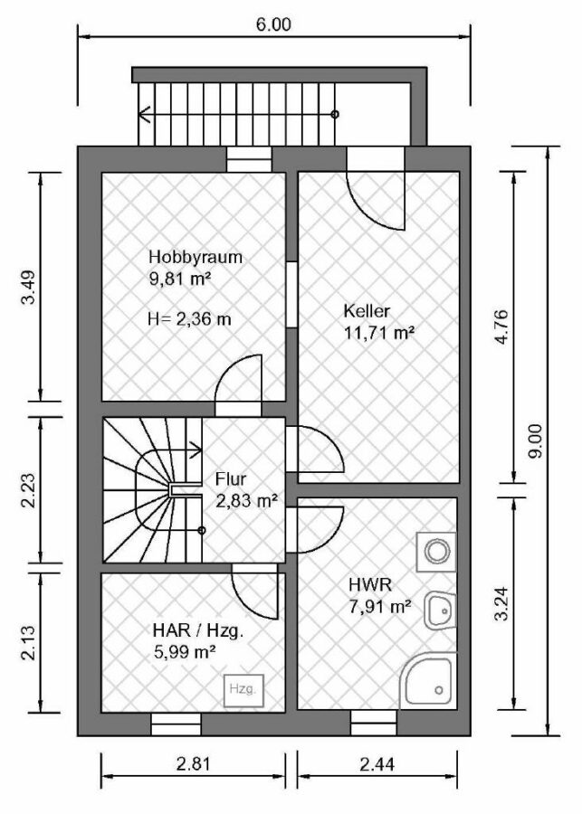
Im Keller befinden sich der Hauswirtschaftsraum mit Waschbecken und Dusche, der Hausanschlussraum und eine Werkstatt/Abstellraum. Von der Werkstatt führt eine überdachte Außentreppe auf das Grundstück.
Am Wohnzimmer befindet sich die Terrasse. Für Beschattung sorgt eine Markise. Auf dem Grundstück dient ein kleines Gerätehäuschen als Abstellraum für Gartengeräte und Fahrräder.
Wer nicht viel Zeit für Gartenarbeit hat, ist auf dem pflegeleichten 214 qm großen Grundstück genau richtig. Dennoch ist auch hier Platz für Kind, Hund und Entspannung.
Die sehr gepflegte Immobilie wird Ende Mai 2025 frei gezogen.

Lage

Die Doppelhaushälfte befindet sich in Halle-Nietleben, in gewachsener ruhiger Siedlungslage. In unmittelbarer Nähe befindet sich der Heidesee, welcher fußläufig erreichbar ist. Den Stadtwald, die Dölauer Heide, erreicht man in wenigen Minuten. Im Ort befinden sich eine Kita, Grundschule, Einkaufsmöglichkeiten, Reiterhof, Hotel, Restaurant usw.. Weitere Versorger, Ärzte, Tankstellen, Kino, Freizeitmöglichkeiten finden Sie in Halle-Dölau oder Halle-Neustadt.
Die Bus- und S-Bahnanbindung sind vorhanden.
B 80 in 5 min, BAB 143 in 10 min, Halle (Saale) Innenstadt 12 min erreichbar.