Salzatal OT Schiepzig: Eigentumswohnung mit Einbauküche und Tiefgarage

06198 Salzatal-Schiepzig, Wohnung zum Kauf

Wohnung

Dieses Objekt wurde bereits erfolgreich vermittelt.

Objekt­beschreibung

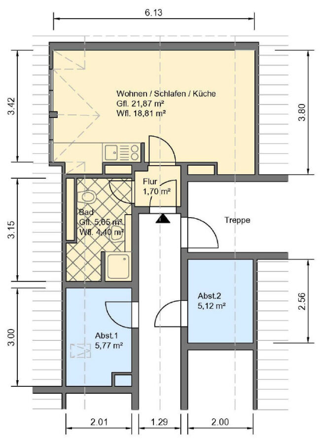
Die 1-Raumwohnung befindet sich in einem Mehrfamilienhaus, hier gelegen im Dachgeschoss.
Auf ca. 25 qm Wohnfläche finden Sie ein großes helles Zimmer mit Single-Küche und ein innenliegendes Bad mit Dusche. Die Wohnung besitzt einen schönen Weitblick. Auf dem Flur befinden sich 2 Abstellräume, hier teilweise mit Fenster. Die Nutzung ist geeignet für Hobby, Abstellen oder sogar als Arbeitszimmer.
Zur Wohnung gehört ein PKW-Stellplatz in der Tiefgarage.
Die Wohnung ist freigezogen. Eventuell erforderlich sind nur die Malerarbeiten.

Lage

Die Wohnung befindet sich im Salzatal OT Schiepzig, 2 km von Salzmünde entfernt. Die Versorger befinden sich in der Umgebung.